LE SALE DEL CAFFè FLORIAN
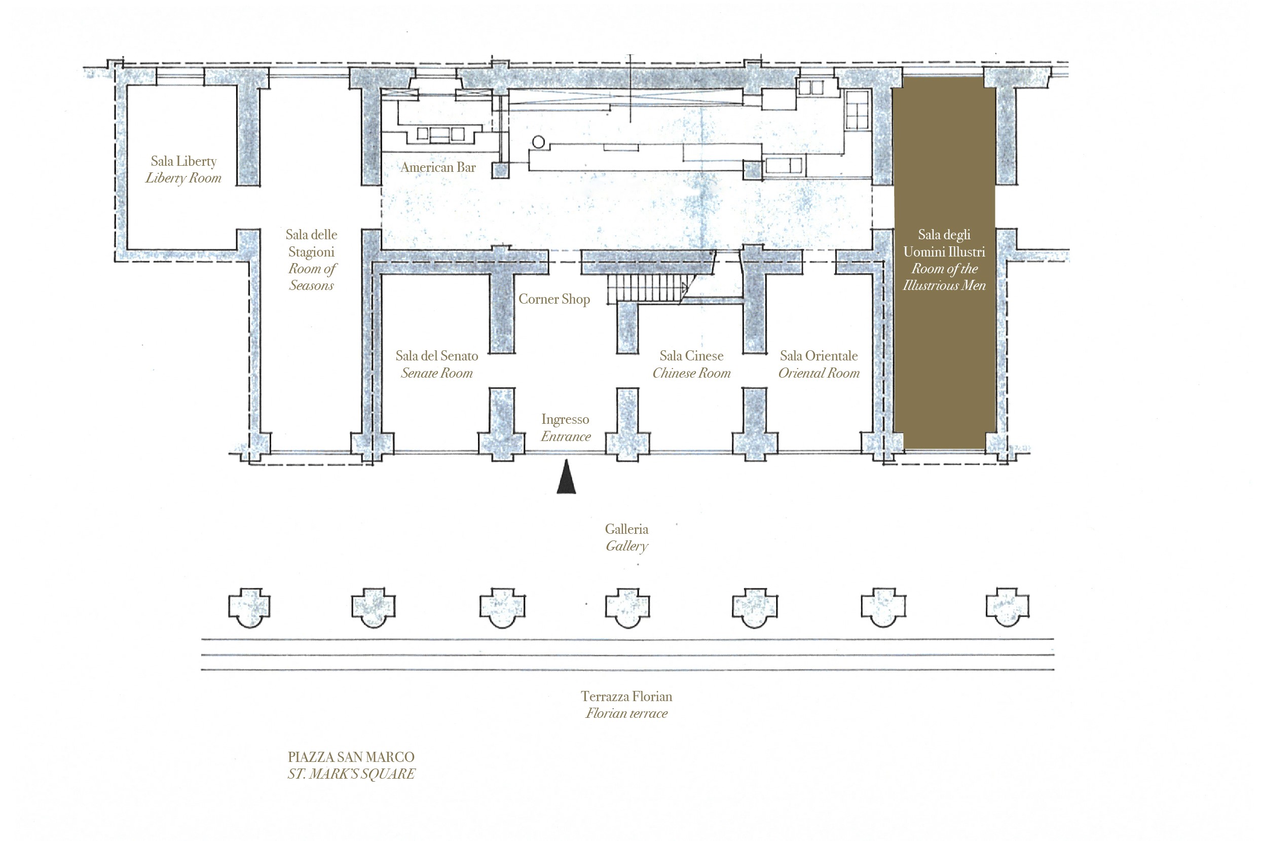
Sala degli Uomini Illustri
Marco Polo, Tiziano, Carlo Goldoni, Paolo Sarpi, Palladio, Francesco Morosini, Benedetto Marcello, Pietro Orseolo, Enrico Dandolo e Vettor Pisani sono i dieci uomini illustri che hanno contribuito a rendere Venezia storicamente importante e famosa nel mondo.
Alternati a imponenti specchi e pannelli decorati, i loro volti espressivi ci osservano dalle pareti.
La Sala degli Uomini Illustri, dipinta da Giulio Carlini, un tempo era un vano di passaggio che collegava porticato e corte all’interno delle Procuratie Nuove.
Della sua condizione di “esterno” rimane ancora oggi testimonianza grazie allo zoccolo in pietra d’Istria non presente nelle altre Sale del Caffè.
Sul soffitto una “Venezia Trionfante”, omaggio alla prima insegna del Florian, fu dipinta “a fresco” da Giuseppe Ponga.
E’ l’ultima delle Sale a essere stata restaurata.
I lavori, terminati nel 2012, hanno riportato affreschi e decori al loro antico splendore.
Vuoi realizzare un evento al Caffè Florian?
Prenota la tua Sala in esclusiva
